پلان و تیپ طبقات

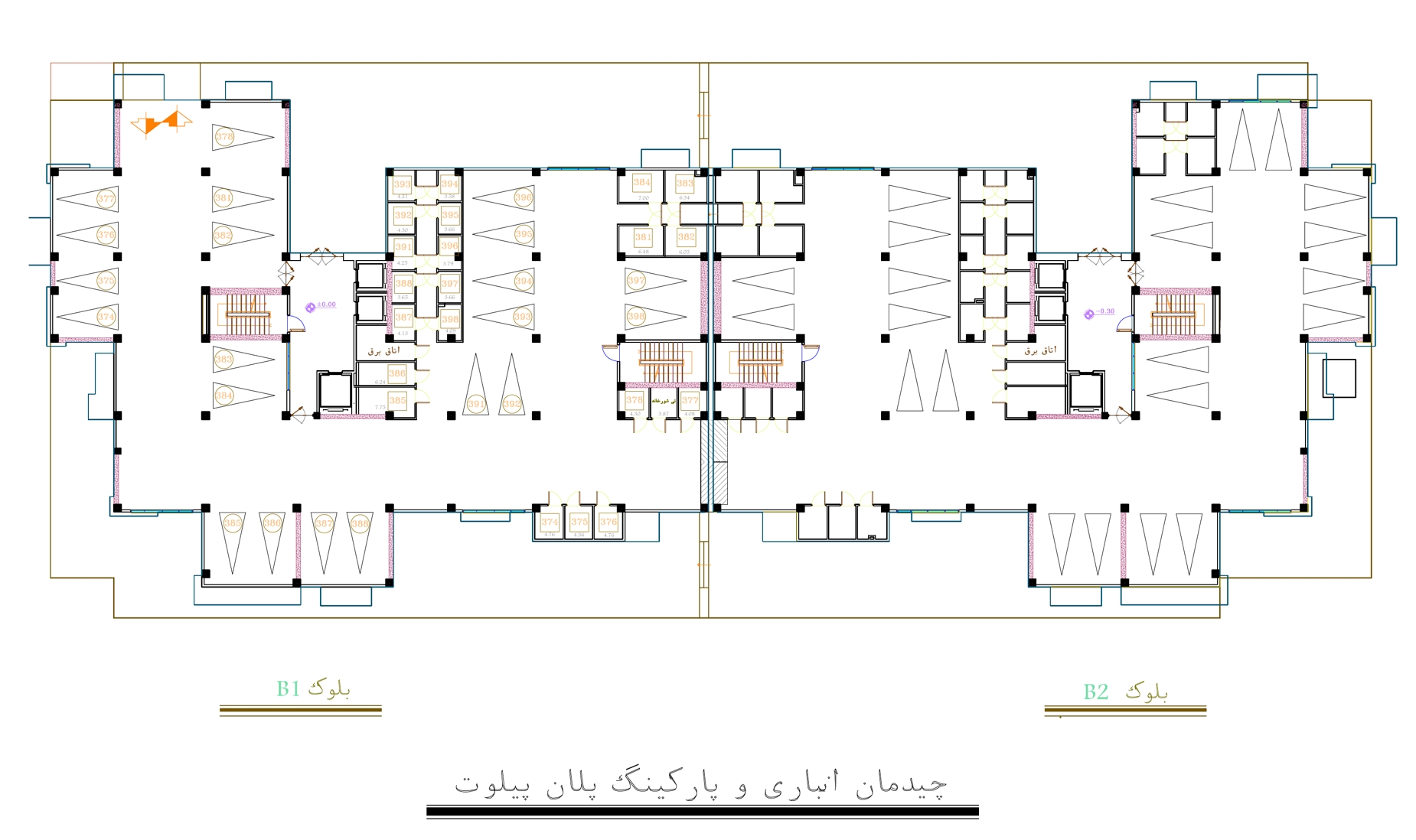
جانمایی انبار و پارکینگ ها در طبقه همکف

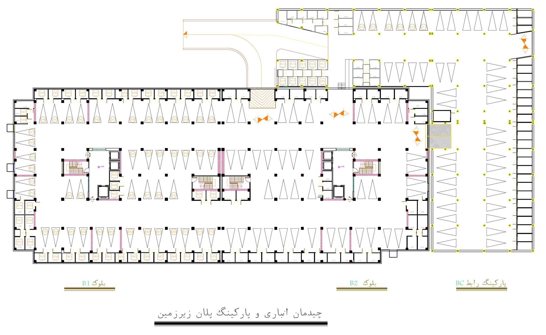
جانمایی انبار و پارکینگ ها در طبقه منفی یک

قیمت مابه التفاوت مرغوبیت و اضافه زیربنا
میزان اضافه بنا بر اساس محاسبات دفتر فنی بوده و بعد از تهیه نقشه های تک خطی اصلاح و قطعی خواهد شد
لیست واحدهای یک خواب بلوک B1

لیست واحدهای دو خواب بلوک B1

لیست واحدهای سه خواب بلوک B1
